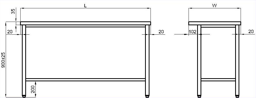
The table top is made from solid wood plate in thickness 35mm.
All tables are with welding frame of stainless steel tube 25x25mm.
Legs of the table are made from tube 40x40mm of stainless steel.
6 legs are produced from 2100mm length.
Hard plastic feet of legs is adjustable 50mm(+25/-25) height.
Standard length L= 400 -2800 mm, width W= 600/700 mm, height H=875-925mm.
![]()


![]()

.jpg)